Villa Anthea Riferimento: FOR 
  • Progetto di villa  Forte dei Marmi

    Progetto di Villa singola con giardino, piscina e parcheggio coperto a Forte dei Marmi, zona Roma Imperiale

    CARATTERISTICHE PRINCIPALI

    Area

    Area

    500 m2

    Camere

    Camere

    6

    Posti letto

    Posti letto

    12

    1

    Piscina

    Piscina

    Giardino

    Giardino

    1500  m2

    Galleria foto

    DESCRIZIONE

    Progetto di Villa in zona Roma Imperiale, a Forte dei Marmi. Ottima posizione, la proprietà è situata in un contesto di ville residenziali circondate dal verde, e si trova a 600-700 m dal mare.
    Villa singola con giardino, piscina e parcheggio coperto.

    Il progetto prevede una Villa cosi composta:
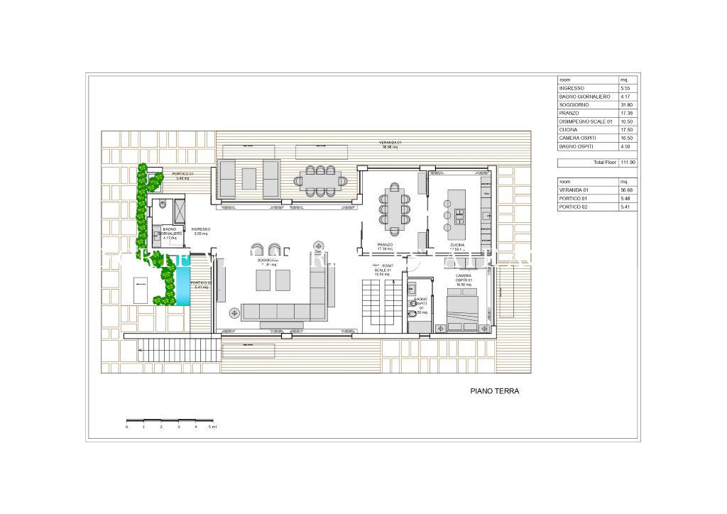
    piano terra: soggiorno, zona pranzo, cucina, una camera da letto con il suo bagno, un bagno di servizio, bellissime terrazze con vista sulla piscina;
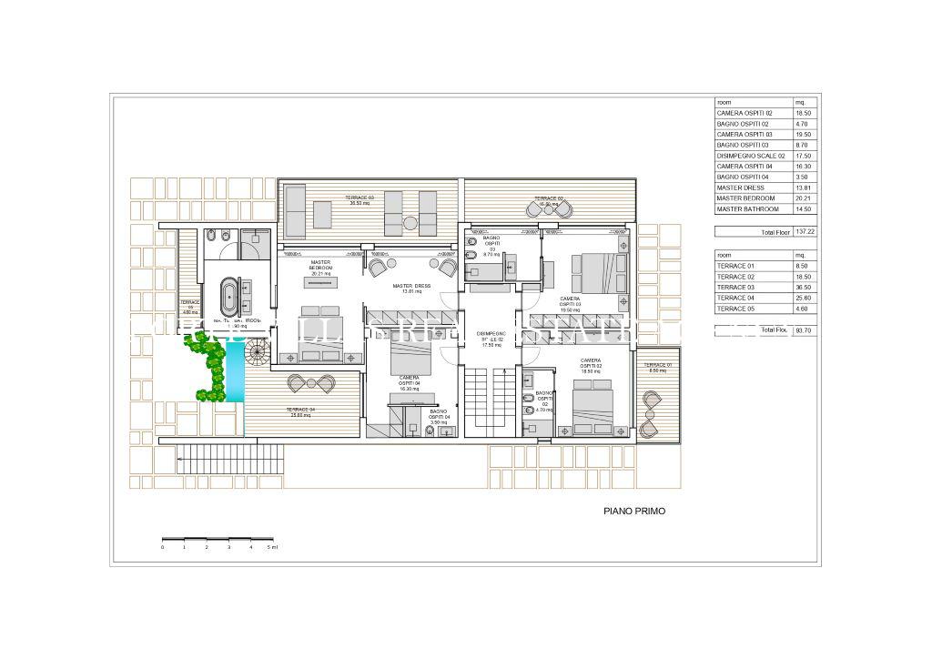
    primo piano: una camera padronale con ampio bagno, zona armadi e grande terrazzo con vista sulle montagne, altre 3 camere ognuna con il suo bagno e il suo terrazzo;
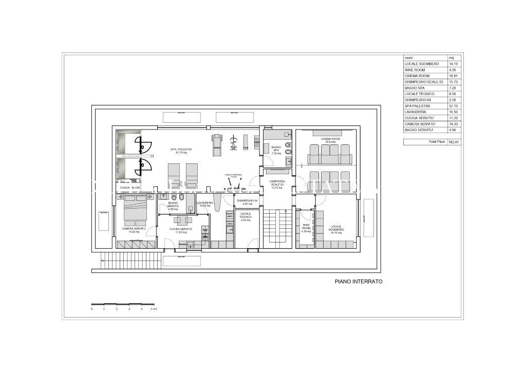
    Al piano interrato troviamo una grande palestra, zona cinema, un bagno, un appartamento composto da camera da letto matrimoniale, cucina, bagno, zona lavanderia e guardaroba.

    UBICAZIONE:
    Forte dei Marmi
    DISTANZA DAL MARE:
    600 metri
    CLASSE ENERGETICA:
    In attesa di comunicazione IPE ACE

    SERVIZI

    SERVIZI PRINCIPALI

     

    • Piscina

    SICUREZZA

     

    • Parcheggio privato

    ALTRI SERVIZI

     

    CONTATTACI

    Forte Villas

    Agenzia immobiliare Forte dei Marmi

    Viale Morin 6
    55042 Forte dei Marmi (LU)

    Telefono:  +39 0584 80615
    Cellulare:  +39 347 7428023
    Email:  elena@forte-villas.com

    Cerchi un immobile a Forte dei Marmi o in Versilia?

    Vedi le nostre proposte in affitto ed in vendita
    NUOVI IMMOBILI

    Ci sono nuovi immobili disponibili nel nostro catalogo
    Vedi gli ultimi immobili inseriti

    TOP