Villa Soraya Riferimento: PIE 
  • Progetto di villa  Pietrasanta

    Meraviglioso progetto di villa con piscina e ampio giardino di 5000 mq in vendita a Pietrasanta a circa 2,5 km dal mare

    CARATTERISTICHE PRINCIPALI

    Area

    Area

    190 m2

    Camere

    Camere

    4

    Posti letto

    Posti letto

    8

    1

    Piscina

    Piscina

    Galleria foto

    DESCRIZIONE

    Meraviglioso progetto di villa con piscina e ampio giardino di 5000 mq in vendita a Pietrasanta a circa 2,5 km dal mare.

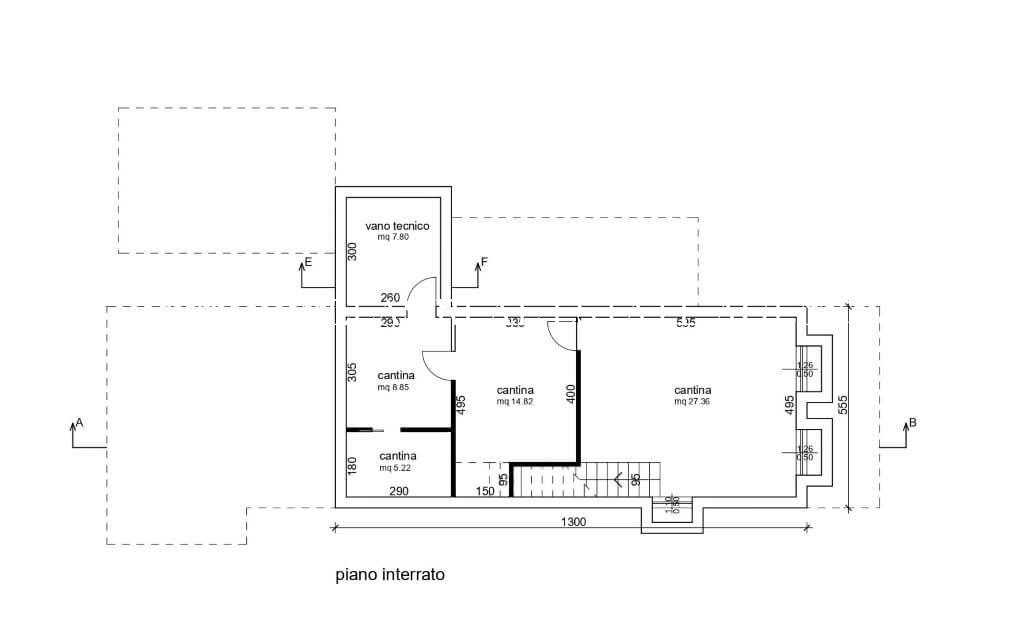
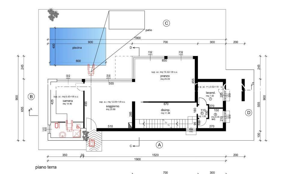
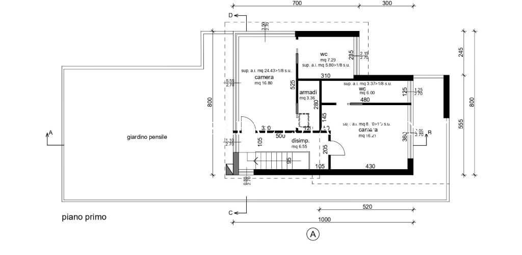
    Il progetto prevede una villa su 2 livelli + piano interrato, composta come segue:
    Piano terra, ampio soggiorno, cucina abitabile, bagno con zona lavanderia, 1 camera matrimoniale con il suo bagno;
    Piano primo, 2 camere matrimoniali con il loro bagno, 1 stanza armadi;
    Piano interrato

    UBICAZIONE:
    Pietrasanta
    DISTANZA DAL MARE:
    2500 metri
    CLASSE ENERGETICA:
    In attesa di comunicazione IPE ACE

    SERVIZI

    SERVIZI PRINCIPALI

     

    • Piscina
    • Aria condizionata
    • Cucina attrezzata

    SICUREZZA

     

    • Cancello automatico
    • Parcheggio privato

    ALTRI SERVIZI

     

    CONTATTACI

    Forte Villas

    Agenzia immobiliare Forte dei Marmi

    Viale Morin 6
    55042 Forte dei Marmi (LU)

    Telefono:  +39 0584 80615
    Cellulare:  +39 347 7428023
    Email:  elena@forte-villas.com

    Cerchi un immobile a Forte dei Marmi o in Versilia?

    Vedi le nostre proposte in affitto ed in vendita
    NUOVI IMMOBILI

    Ci sono nuovi immobili disponibili nel nostro catalogo
    Vedi gli ultimi immobili inseriti

    TOP