Progetto Villa Croce Ref.: FOR 
  • Villa project for sale in Forte dei Marmi

    Modern project of single villa with garden and private parking space, located on the border with Forte dei Marmi city centre, about 600 meters from the sea.

    MAIN FEATURES

    Area

    Area

    160 sqm

    Bedrooms

    Bedrooms

    3

    Beds

    Beds

    6

    Bathrooms

    Bathrooms

    2

    Photo gallery

    DESCRIPTION

    Modern project of single villa with garden and private parking space, located in between from Vittoria Apuana area and Forte dei Marmi city centre, about 600 meters from the sea.
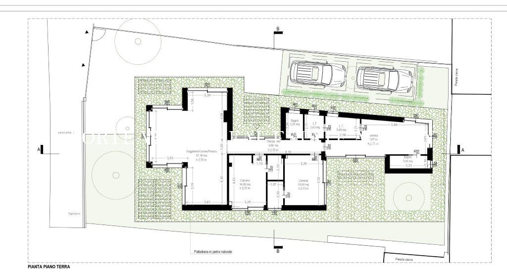
    The property is composed by a large living room, kitchen and dining room, 3 o 4 bedrooms with closet room, 2 bathrooms.

    LOCATION:
    Forte dei Marmi
    SEA DISTANCE:
    600 meters
    ENERGY RATING:
    Waiting for communication

    SERVICES

    MAIN SERVICES

     

    • Air conditioning

    SECURITY

     

    • Automated gate
    • Alarm system
    • Private car park

    OTHER SERVICES

     

    CONTACT US

    Forte Villas

    Real estate agency Forte dei Marmi

    Viale Morin 6
    55042 Forte dei Marmi (LU)

    Telephone:  +39 0584 80615
    Mobile:  +39 347 7428023
    Email:  elena@forte-villas.com

    SIMILAR PROPERTIES

    Looking for a property in Forte dei Marmi or Tuscany?

    See our proposals to rent and for sale
    LATEST

    There are new properties available in our catalog
    See the latest properties added

    TOP